Home Hero Image

Blue Moon Piano Bar

West Des Moines, Iowa

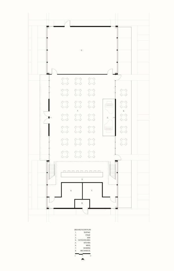
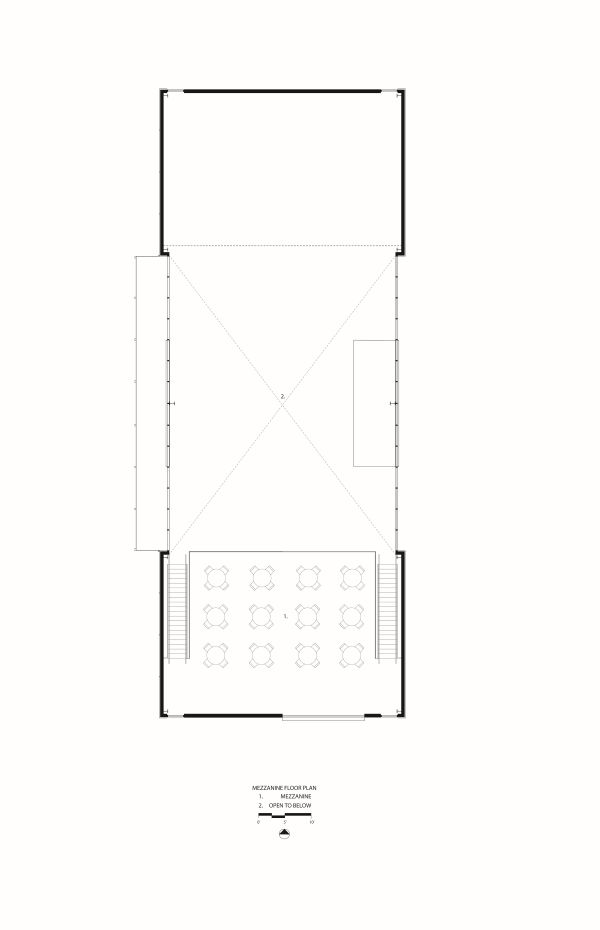
Set within West Glen Town Center along Mills Civic Parkway, Blue Moon created a destination where music, hospitality, and community collided. A central performance zone kept the twin grands in the round, with a mezzanine overlooking the main floor to pull guests into the show from every angle. Flexible seating transitioned from early-evening dining to shoulder-to-shoulder sing-alongs, while integrated sound and lighting supported the room's signature "request-driven" format. Outdoor patio space tied the venue to the district’s street life, extending the experience beyond the doors. The result was a purpose-built social engine—equal parts bar, restaurant, and live-music theater.

Project completed while at HLKB Architecture — Role: Project Designer

Photos by Cameron Campbell; Integrated Studio